Чердачная лестница Fakro LTK Thermo в Тольятти






















| Посадочные размеры | Высота потолка | Габаритные размеры | Прочие размеры | Масса | Механизм запирания | |||||
|---|---|---|---|---|---|---|---|---|---|---|
| Ширина (мм) | Длина (мм) | От (мм) | До (мм) | Ширина (мм) | Длина (мм) | Глубина короба (мм) | Минимальное расстояние до стены (мм) | Толщина дверцы (мм) | (кг) | |
| 600 | 1000 | 2500 | 2800 | 600 | 1000 | 220 | 1030 | 66 | 28.3 | Замок под 4х-гранный ключ |
| 600 | 1200 | 2320 | 2800 | 600 | 1200 | 220 | 1230 | 66 | 35 | Замок под 4х-гранный ключ |
| 600 | 1200 | 2700 | 3000 | 600 | 1200 | 220 | 1750 | 66 | 28.3 | Замок под 4х-гранный ключ |
| 600 | 1200 | 2500 | 3300 | 600 | 1200 | 220 | 1230 | 66 | 31 | Замок под 4х-гранный ключ |
| 600 | 1300 | 2320 | 2800 | 600 | 1300 | 220 | 1330 | 66 | 36 | Замок под 4х-гранный ключ |
| 600 | 1300 | 2320 | 3050 | 600 | 1300 | 220 | 1340 | 66 | 36 | Замок под 4х-гранный ключ |
| 700 | 1000 | 2500 | 2800 | 700 | 1000 | 220 | 1030 | 66 | 29.5 | Замок под 4х-гранный ключ |
| 700 | 1200 | 2320 | 2800 | 700 | 1200 | 220 | 1230 | 66 | 37 | Замок под 4х-гранный ключ |
| 700 | 1200 | 2500 | 3300 | 700 | 1200 | 220 | 1240 | 66 | 34 | Замок под 4х-гранный ключ |
| 700 | 1200 | 2700 | 3000 | 700 | 1200 | 220 | 1750 | 66 | 28.3 | Замок под 4х-гранный ключ |
| 700 | 1300 | 2320 | 2800 | 700 | 1300 | 220 | 1330 | 66 | 38 | Замок под 4х-гранный ключ |
| 700 | 1300 | 2320 | 3050 | 700 | 1300 | 220 | 1340 | 66 | 38.2 | Замок под 4х-гранный ключ |
| 700 | 1400 | 2320 | 2800 | 700 | 1400 | 220 | 1430 | 66 | 39.5 | Замок под 4х-гранный ключ |
| 700 | 1400 | 2500 | 3050 | 700 | 1400 | 220 | 1440 | 66 | 39.5 | Замок под 4х-гранный ключ |
| 700 | 1400 | 2500 | 3300 | 700 | 1400 | 220 | 1440 | 66 | 39.5 | Замок под 4х-гранный ключ |
| Посадочные размеры | Высота потолка | Габаритные размеры | Прочие размеры | Масса | Механизм запирания | |||||
|---|---|---|---|---|---|---|---|---|---|---|
| Ширина (мм) | Длина (мм) | От (мм) | До (мм) | Ширина (мм) | Длина (мм) | Глубина короба (мм) | Минимальное расстояние до стены (мм) | Толщина дверцы (мм) | (кг) | |
| 600 | 1000 | 2500 | 2800 | 600 | 1000 | 220 | 1030 | 66 | 28.3 | Замок под 4х-гранный ключ |
| 600 | 1200 | 2320 | 2800 | 600 | 1200 | 220 | 1230 | 66 | 35 | Замок под 4х-гранный ключ |
| 600 | 1200 | 2700 | 3000 | 600 | 1200 | 220 | 1750 | 66 | 28.3 | Замок под 4х-гранный ключ |
| 600 | 1200 | 2500 | 3300 | 600 | 1200 | 220 | 1230 | 66 | 31 | Замок под 4х-гранный ключ |
| 600 | 1300 | 2320 | 2800 | 600 | 1300 | 220 | 1330 | 66 | 36 | Замок под 4х-гранный ключ |
| 600 | 1300 | 2320 | 3050 | 600 | 1300 | 220 | 1340 | 66 | 36 | Замок под 4х-гранный ключ |
| 700 | 1000 | 2500 | 2800 | 700 | 1000 | 220 | 1030 | 66 | 29.5 | Замок под 4х-гранный ключ |
| 700 | 1200 | 2320 | 2800 | 700 | 1200 | 220 | 1230 | 66 | 37 | Замок под 4х-гранный ключ |
| 700 | 1200 | 2500 | 3300 | 700 | 1200 | 220 | 1240 | 66 | 34 | Замок под 4х-гранный ключ |
| 700 | 1200 | 2700 | 3000 | 700 | 1200 | 220 | 1750 | 66 | 28.3 | Замок под 4х-гранный ключ |
| 700 | 1300 | 2320 | 2800 | 700 | 1300 | 220 | 1330 | 66 | 38 | Замок под 4х-гранный ключ |
| 700 | 1300 | 2320 | 3050 | 700 | 1300 | 220 | 1340 | 66 | 38.2 | Замок под 4х-гранный ключ |
| 700 | 1400 | 2320 | 2800 | 700 | 1400 | 220 | 1430 | 66 | 39.5 | Замок под 4х-гранный ключ |
| 700 | 1400 | 2500 | 3050 | 700 | 1400 | 220 | 1440 | 66 | 39.5 | Замок под 4х-гранный ключ |
| 700 | 1400 | 2500 | 3300 | 700 | 1400 | 220 | 1440 | 66 | 39.5 | Замок под 4х-гранный ключ |
| Цена | |
|---|---|
| Розничная цена | Цена со скидкой 10% |
| 39 872 | 35 885 |
| 30 968 | 27 871 |
| 32 625 | 29 362 |
| 44 324 | 39 891 |
| 32 625 | 29 362 |
| 35 524 | 31 971 |
| 41 321 | 37 189 |
| 32 004 | 28 803 |
| 45 670 | 41 103 |
| 33 453 | 30 108 |
| 33 453 | 30 108 |
| 37 077 | 33 369 |
| 36 352 | 32 717 |
| 38 009 | 34 208 |
| 51 260 | 46 134 |
| Товар |
|---|
| Чердачная лестница Fakro LTK Thermo 700*1300*3050 |
| Посадочные размеры | Высота потолка | Габаритные размеры | Прочие размеры | Масса | Механизм запирания | |||||
|---|---|---|---|---|---|---|---|---|---|---|
| Ширина (мм) | Длина (мм) | От (мм) | До (мм) | Ширина (мм) | Длина (мм) | Глубина короба (мм) | Минимальное расстояние до стены (мм) | Толщина дверцы (мм) | (кг) | |
| 700 | 1300 | 2320 | 3050 | 700 | 1300 | 220 | 1340 | 66 | 38.2 | Замок под 4х-гранный ключ |
| Посадочные размеры | Высота потолка | Габаритные размеры | Прочие размеры | Масса | Механизм запирания | |||||
|---|---|---|---|---|---|---|---|---|---|---|
| Ширина (мм) | Длина (мм) | От (мм) | До (мм) | Ширина (мм) | Длина (мм) | Глубина короба (мм) | Минимальное расстояние до стены (мм) | Толщина дверцы (мм) | (кг) | |
| 700 | 1300 | 2320 | 3050 | 700 | 1300 | 220 | 1340 | 66 | 38.2 | Замок под 4х-гранный ключ |
| Цена | |
|---|---|
| Розничная цена | Цена по распродаже |
| 37 077 | 27 700 |
Общие параметры
Пластиковые накладки на ножки
До: 2800 мм, 3000 мм, 3050 мм, 3300 мм
Погрешность при производстве может составлять +- 2 мм.
Производитель на свое усмотрение и без дополнительных уведомлений может менять комплектацию, внешний вид и технические характеристики модели.
Ориентировочная стоимость монтажа такой чердачной лестницы в подготовленный проем - 15000 р.
Если есть какие-то нюансы по монтажу, то во время консультации мастер-монтажник скажет более точную информацию.
Перечень и стоимость услуг по замеру и монтажу чердачных лестниц можно посмотреть на странице
https://www.luchki.ru/mounting
В комплекте с лестницей для открывания/закрывания крышки идет металлический стержень . Его 4-хгранный наконечник вставляете в замок и поворачиваете стержень, сдвигая ригель (язычок) замка, и потом стержнем подтягиваете крышку вниз и по мере опускания рукой доводите крышку до полного открытия. Закрывается крышка также, но в обратном порядке.
Крышка у чердачной лестницы модели LTK Thermo белая с обеих сторон
Данная чердачная лестница весит 35 кг.
Лестницу нельзя нагружать дополнительными элементами, например, обивать крышку панелями. В инструкции по безопасности это отмечено. Несоблюдение правил по монтажу и эксплуатации может быть причиной несчастного случая , отменяет гарантию производителя и снимает с него ответственность
Лестничный марш покрыт только защитным слоем антисептика. По желаю можно покрасить марш в любой цвет или покрыть лаком для дополнительной защиты
Да, облицовочную поверхность чердачной лестницы Fakro LTK Termo можно шпаклевать и красить, прикреплять лист не рекомендуем, так как возрастет нагрузка на дверцу. Как альтернативный вариант можно использовать стеклохолст, после высыхания уже зашпаклевать и покрасить поверхность крышки. Таким образом, стеклохолст обеспечит защиту от проникновения влаги в лист ДВП, тем самым предотвратит его деформацию при шпаклевании и окраске.
Да, у данной лестницы есть 1 контур резинового уплотнения.
В случае, если Вам необходима более утепленная лестница, то рекомендуем обратить внимание на модель Fakro LWT - https://www.luchki.ru/catalog/cherdachnye_lestnicy/fakro_lwt_super_thermo. Данная модель с максимальным утеплением, крышка 80 мм, имеет 3 контура резинового уплотнения.
Да, последнюю секцию можно подпилить под нужную высоту потолка. Под размер тоже можно заказать, но это займет большой срок изготовления и стоимость существенно отличается от стандартного исполнения.
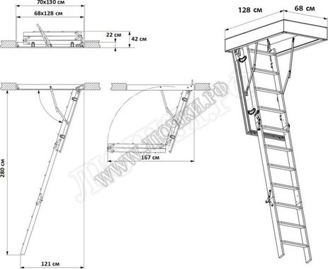
Минимальное расстояние до стены - это расстояние до перпендикулярной стены за Вашей спиной, когда вы стоите лицом к лестнице, чтобы разложить лестничный марш. Иными словами - это вылет лестничного марша за габариты короба при его раскладывании.
Услуги замера и монтажа временно не предоставляются
Приносим извинения за возможные неудобства
Стоимость работ по монтажу
| Стоимость работ по монтажу люков | ||||
|---|---|---|---|---|
| Модель | Стоимость работ | Стоимость материала для монтажа | ||
| Напольный | ||||
| Съемный | от 8000 | от 2000 | ||
| На петле | ||||
| Настенный | ||||
| Металлический сантехнический размеры от 200 до 500мм | от 500 | от 200 | ||
| Металлический сантехнический размеры от 500 до 1000мм | от 1000 | от 500 | ||
| Под плитку размеры от 200 до 500 мм | от 2500 | от 500 | ||
| Под плитку размеры от 500 до 1000 мм | от 3500 | от 1000 | ||
| Под покраску размеры от 200 до 500 мм | от 2500 | от 500 | ||
| Под покраску размеры от 500 до 1000 мм | от 3500 | от 1000 | ||
| Потолочный | ||||
| Под покраску от 200 до 500 мм | от 2500 | от 500 | ||
| Под покраску от 500 до 1000 мм | от 3000 | от 1000 | ||
| Стоимость работ по установке чердачных лестниц | ||||
| Тип работ | Стоимость работ | |||
| Деревянные чердачные лестницы, установка в готовый проем | 5000 ₽ | |||
| Металлические чердачные лестницы, установка в готовый проем | 7500 ₽ | |||
| Подготовка проема под установку лестнице (в зависимости от сложности работ, кроме бетонных проемов) | от 2000 до 5000 ₽ | |||
| Подготовка проема в бетонном перекрытии | от 5000 | |||
| Стоимость услуг по установке окон-люков | ||||
| Тип работ | Стоимость работ | |||
| Установка окон-люков в готовый проем без подведения кровельного покрытия | 5000 ₽ | |||
| Установка окон-люков в готовый проем без подведения кровельного покрытия с переносом стропильной системы | 8000 ₽ | |||
| Установка окон-люков в готовый кровельный пирог (Битумная, натуральная, металлочерепица) | 10000 ₽ | |||
| Установка окон-люков в готовый кровельный пирог с переносом стропильной системы (Битумная, натуральная, металлочерепица) | 13000 ₽ | |||
| Установка окон-люков в фальцевую кровлю (Клик фальц, двойной стоящий фальц, оцинковка и т.п.) | от 18000 ₽ | |||
В стоимость работ не входит:
- Укладка плитки;
- Шпатлевка;
- Подготовка проема;
- Укрепление проема;
- Утепление люка.
ВНИМАНИЕ! Дополнение по установке и замеру чердачных лестниц: Выезд на замер осуществляется платно, до первого малого бетонного кольца 1 500 ₽, от малого и далее по Московской области 2 000 ₽.
* Стоимость монтажа и установочных работ может отличаться от прайса. Подробную информацию уточняйте у менеджеров магазина.
* Расходный материал при установке чердачных лестниц в стоимость монтажа не входит и расчитывается индивидуально.






















+7 (977) 090-10-90




















































































































































































